2015-2016年
使用されたアンカー: 除去アンカー
プロジェクトの概要
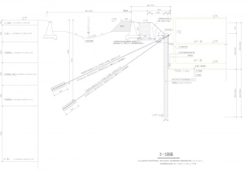
このプロジェクトは現場打ちのパイルと圧縮応力分散アンダーレイアンカーによって支えられています。 そのうち、それぞれ長さ26mのアンカーが308個使用されています。この工法により、このプロジェクトから約1000万元が節約されました。 また建設期間を2ヶ月短縮しています。 地下アンカーの端部支持能力は、従来のアンカーよりも30%〜50%の引き抜き力を有します。 河川の下約7メートルのアンカーは、まだ810kNの引き抜き力を達成します。
地中アンカーの独特な力原理と、ジェットグラウト技術による圧縮応力分散アンダーレイアンカーを使用して、低い引き抜き力、不安定性、土壌擾乱、および道路整備の問題を解決します。 その一方で、従来のアンカー使用を、ホットメルト取り外しグラウンドアンカーに置き換えて、回復する問題を解決しました。 全体として、建設工事はより信頼性が高く安全です。
詳細
周囲: 710m
ピットエリア: 31000m2
掘削深度: 9.6~10.4m