2012-2013年
使用されたアンカー: プレストレスアンカー
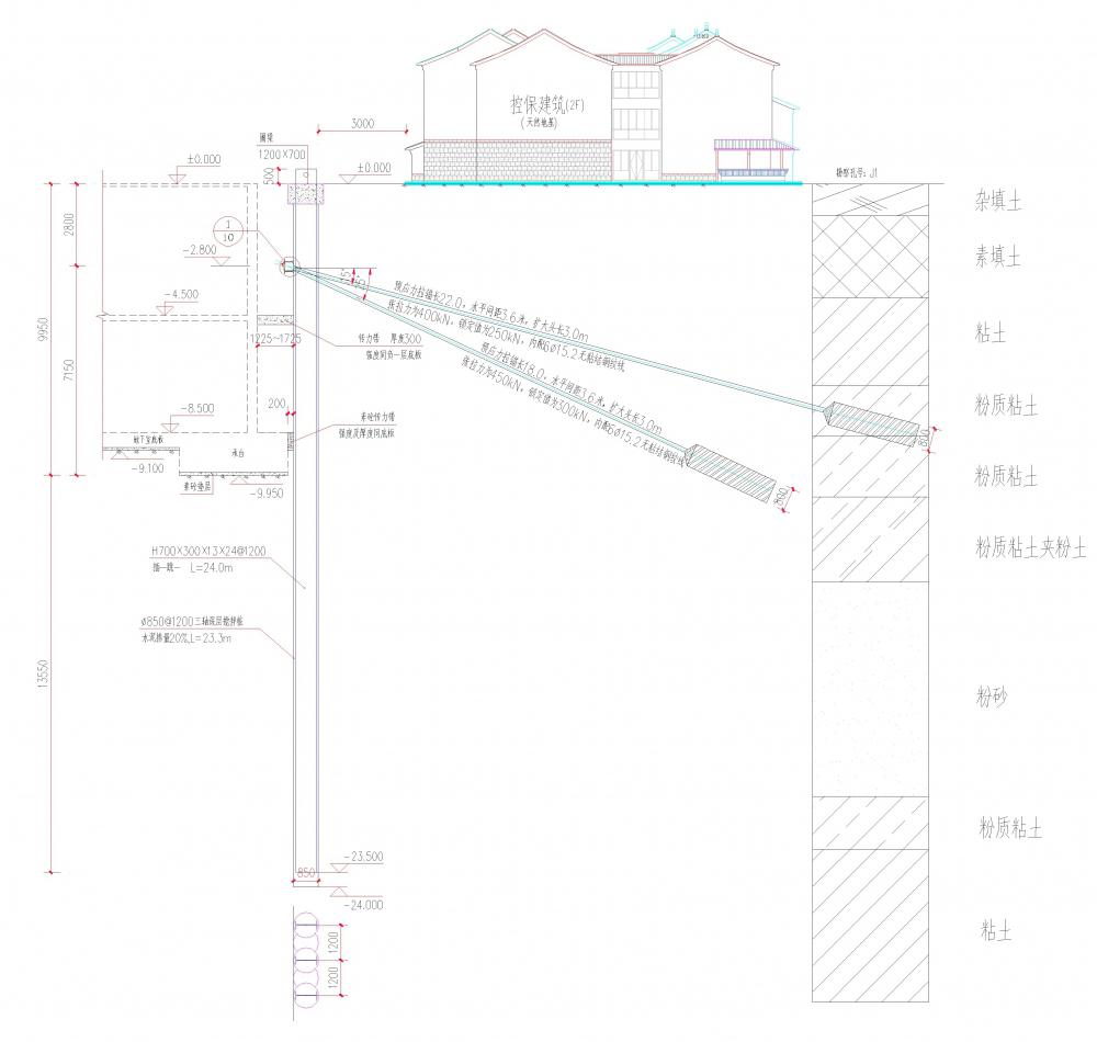
プロジェクトの概要
私たちは、基礎ピットが囲まれた、自然の基盤を持つ歴史的建造物とその間に稼動していた商業ビルがあり、建設中に困難に直面しました。 両側には4mの広い道路があり、建設中、アンカーはその間に引き抜き力を提供して、歴史的に保存された建物に影響を与えないように土壌の乱れに対する影響を最小限に抑えなければなりませんでした。 構築後、アンカーを回収して完全に除去しなければなりません。我々はその状況に応じて、ホットメルト除去アンカー技術と、統合されたプレストレストアンカーを使用しました。 最終的には、敷地と歴史的建造物を保護し、アンカーを解体してリサイクルする使命を果たしました。
詳細
建築エリア: 2000m2
掘削深度: 11.4 m